Lots of Info on the Proposed Suburban Plaza/Walmart Development
Decatur Metro | October 25, 2011
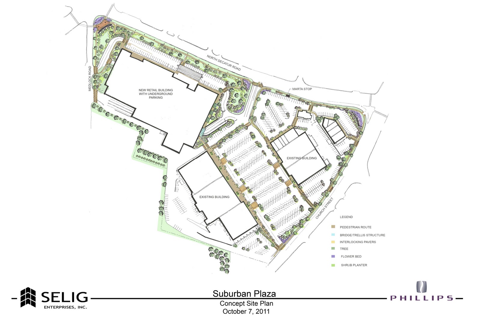
The Medlock neighborhood association met last night and has provided a very detailed recap regarding everything that is currently known about Selig’s plan to bring Walmart to a redeveloped Suburban Plaza.
Not only have they posted a conceptual site plan (above – click to enlarge), but also plenty of additional details about the proposed development. To sum up…
- Developer is very interested in community feedback and is aware the residents want a more walkable, bikeable area
- Selig has ordered a traffic study on its own dime, but county state roads surrounding the site will make it a complicated process
- Walmart would take over the space “occupied by the thrift store and the discount mattress store. The Walmart would feature 500 underground parking spots; Walmart would pay for this.”
- The Walmart would be 147,000 square feet with 40,000 square feet dedicated to groceries
- Selig would also reface all other buildings in the plaza
- Trader Joe’s was not interested in the site
- Walmart will not have a garden center – a concern with Intown ACE Hardware fans
The Medlock Neighborhood Association has scheduled an entire meeting to cover the details of this plan on November 2nd at 7pm at North Presbyterian Church at 611 Medlock Road.
But don’t just go on my summation, there’s a lot more info in the Medlock post!












The Horror!!
The horror of info?
Never!
Thanks for all of this info. A lot to digest…
A very nice site plan with lotsof green space, pedestrian and bike friendly, re-facing the exisitng buildings to remain, underground parking, no automotive center and no garden center – I am impressed and supportive of the plan as shown and described.
Ditto! Sounds much better than what’s there today.
Any indication about whether this will be a 24 hour store?
Personally I am more concerned about MARTA putting light rail up the median of Scott Blvd. Um, what median?
AMB, what light rail on Scott? Perhaps I’m late to the game. I hadn’t heard about this and live off Scott where it intersects with Clairemont.
Didn’t mean to threadjack, DM.
The FB page of the Clifton Corridor Transit Initiative posted 3 plans yesterday. One had light rail going up the median of Scott Blvd. It was news to me too and impacts me directly as well.
http://www.facebook.com/pages/Clifton-Corridor-Transit-Initiative/154114080040
I believe that, once light rail down Clairemont became dead for good, the alternate plan took it down Scott to DeKalb Industrial (or similar) to connect with the Avondale Marta station.
Thanks for the info AMB. Hadn’t seen it yet. (And sorry for the thread jack DM.)
I was about to post the same thing the saw your message. Is light rail on Scott Blvd part of the regional trasportation sales tax package of projects?
I like it. That is one ugly corner now. A big improvement although I think the Medlock Road access will require some study. The plan does not have a single dedicated signalized entrance which will be a problem.
Sure hope that Hancock Fabrics and Suburban Bowl stay. The Medlock post hinted that it may depend on how well they are doing and whether they can pay rent. No word on guns….:)
ANOTHER Walmart? Does anyone realise that there’s one about 4mi away? Who needs a Walmart on EVERY corner? Americans, apparently. I refuse to shop there no matter HOW MANY they build. It’s CRAZY. Absolutely crazy.
The Horror!!!!!
Did you know that Wal-Mart grocery stores are one of the biggest buyers (for resale) of organic produce and one of the reasons prices of organic groceries of all type at all grocery stores have gone down and availability has gone up in the past several years.
STOP! I’m so conflicted I could eat a McRib out of pure confusion.
Do you know that their supplier policies contribute to wage stagnation in developing counties all over the world, and force manufacturing operators to push their employees into longer days with increasingly dangerous working conditions?
I would think that would be true of every company using factories in third world countries or suppliers with factories in third world countries.
When you’re the biggest, you have the biggest impact, and that’s Wal-Mart in this case. No other company has the same sway on foreign manufacturers because they all know that Wal-Mart has the biggest market for their products.
So, are you saying its OK to offend so long as you aren’t the biggest offender?
I’m saying that everyone has to draw a line in the sand for themselves, and for me, it’s Wal-Mart. Their size, scope and operational practices hurt many many people around the world. I choose not to contribute to their success, and I would urge others to do the same. You choose the battles that are important to you, right?
Don’t think that by pointing out potential hypocrasy, it dilutes the fact that this company has done some terrible things to people in this world. Hypocrasy exists for those of us who are perfect, and I have yet to meet anyone fitting that description.
Hypocrisy. And hypocrisy.
I do not find that to be true. The very few times I have shopped at a Wal Mart was with the intent of finding natural & organic products. Very hard to find.
Angela, I am glad you refuse to shop at Walmart. It is too, too crowded every time I go to shop. I am glad there are people that can pay the extra money to subsidize less efficient stores.
I admit it. On occasion, I must venture to the Wally World on Memorial. I always feel like I need a stiff drink before I can walk in there. And feel like I need a hot shower when I leave.
I hope the actual building looks like this!
And they sell local fresh produce/meat! Then my new urbanist side and my local-loving side and my independents are #1! side would have to fight to the death!
For a Wal-Mart, that looks pretty nice. Sadly, I doubt the upcoming Wal-Mart will look anything like it
its all about how a group appraches and responds. All the big box retailers are about the bottom line but also need good will and good press. If approached in a manner looking for a positive outcome for both the community and the retailer, these retailers can find a lot of ways to cooporate. If you give them a look at how hostile your neighborhood can be, they are likley to write off that enclave and look at the numbers from a broader area and very often see what the mionimum they must do to get a permit.
Bottom line, even if you don’t care for Walmart (or Target or Home Depot, etc.), if you want to get a better result, figurig out how to work with them will get more access to their deep pockets for design concessions than will a show of protest.
Me either. But why not demand it. This walmart could look even better bc it will not have a parking garage on the back like in this photo. If walmart wants to build a store 4 mi from a current store, let’s demand (it not be built, and if that doesn’t work) that it be visually stimulating, cool as heck, easily repurposed when they ditch it for another store 4 mi away, and the “greenest” one in the world in terms of the building, local builders, products into the building, and what the Walmart sells to the public. I’m not as interested in organic produce from a big corporation in Thailand, but organic produce from Ga family farms.
Ooo Yeah! If we could get a building like this on that property I don’t care whose name they stick on it! Very handsome. WHere did you find it DM and who is the architect?
Here’s the link: http://newurbannetwork.com/article/will-walmart-finally-build-urban-store-13603
Thanks DM. I was gussing it was DC but I had also guessed it would be on the VA side of the river – not in the district itself. I used to do Home Depot Stores in the mid-atlantic area in the mid ’90s. The big box guys are definintly losing their tone deafness to apprpriate urban design. This store in DC is light years better than anything any of these guys would have considered allowing us to design back then.
I’d take that as well but, sadly, that example’s the result of specific context, code and politics. Walmart only “goes there” when it’s the only way they can enter a desired market. Suburban Plaza is a car-dominated environment with car-friendly zoning and no strong political advocacy for anything vastly off the status quo.
In this case, Walmart will doll up the sidewalks a bit, add some green band-aids nicely suited to obscuring both reality and the building, hide some parking underground and voila: a pretty package of the same old sh*t.
But, hey. If that’s enough to please the neighbors, who am I to complain. Ya’ll enjoy!
So they would just build a regular old suburban Walmart right off the street like that? I’ve never seen such a thing.
Those upper floors are apartments. Some day some our Walmart haters might actually live in the same building as Walmart.
And here we all thought that Walmart selling Stonyfield Yogurt would be the largest crisis the big-box would ever pose to us. (ie Food, Inc) Oh the humanity!!
Must reconcile beliefs…must…reconcile…
I always wonder who lives in those Shoe Factory Lofts in the Edgewood Retail District with the lovely view of the Target/Petsmart parking lot…
A six-story building (like the posted rendering) on that site is by no means appropriate infill.
I would like to know how they can justify having another Walmart so close to the Memorial Drive location.
Justify? Isn’t it a business decision pure and simple? They don’t have to justify anything to anyone except their shareholders as far as I know. They know where to build their stores better than we do, I guarantee that.
And what is appropriate infill?
Amen.
But be careful DM, you are singing one of my tunes. Some of your other readers may not be as amused…
Ha! My most loyal readers should already know that the positions I’m most skeptical (huh, huh?) of generally are my own.
But seriously, I’ve hated on Walmart with the best of them in the past. However the thing that really got to me was books like “Cheap” and comments from people like Nellie who pointed out that Target was really no better than Walmart when it came down to all the things that people “hate” about Walmart. The book “Cheap” also points out all the similar problems with Ikea that my yuppie kin folk like to ignore.
Walmart ain’t great, and in a lot of ways its the epitome of what I dislike about business in this country. But I find it quite difficult to live here without utilizing Targets and Ikeas and because of that, I’m not going to talk out of both sides of my mouth anymore about Walmart. So instead, I poke fun at all the things I used to say and (in some ways) still believe.
At the end of the day, cheap is cheap and there’s only one way to get there.
Ah, now I get your comments! Thanks for helping me out. I say there are alternatives to cheap, but it requires deliberate decisions to live a lower consumption lifestyle (not a good descriptor of what I mean) that most people are not willing to live.
“…Nellie who pointed out that Target was really no better than Walmart when it came down to all the things that people “hate” about Walmart.”
FALSE! I disproved thias in the last Wal Mart thread. To sum up: Target doesn’t abandon their stores, but Wal Mart is notorious for it.
Evidence: Target shut down and completely remodeled their store on N Druid Hills Road rather than close it permanently and move somewhere else. As I recall, that was even an old Richway location, so when they built it they didn’t have to scorch new earth.
Target also has a multi-level store in the middle of Buckhead, something that can’t imagine Wally doing.
Target has taken over several old Richway stores. The Target at Lawrenceville Hwy and Jimmy Carter Blvd (which is now a Home Depot) used to be a Richway. I used to have a mental list of five or six Targets in the metro area that used to be Richways, but Tucker and N. Druid are the only ones I recall at the moment.
The Target at Northlake used to be a car dealership.
On the other hand, just about every Wal Mart I now of was built on either virgin land, or old private estates (the Cofer property in Tucker, for example).
It was taxing my brain to try to recall this stuff, so I cheated!
http://skycity2.blogspot.com/2006/07/richway-discount-division-of-rich_01.html
I can think of two instances of Target closing up shop to build nearby, and both original locations stayed empty for quite some time:
Athens store closed to open a new store about two miles up the Atlanta Hwy
Snellville store on 78 closed to open a new store on Scenic Hwy
You beat me to it. Sorry for the repetition.
Actually, now that I think about it, Target did close one store and left it empty – the one on Park Place just south of 78. Never could understand why it closed, it seemed like a great location.
The scenic highway location was opened years before the stone mountain super t was slated for closure. As was a greatland target the other direction at Stonecrest.
The stone mountain super t was closed because the grocery side was not profitable enough, and was dragging down the district average when the district was reshuffled and they were lumped in with unusually high performing stores. If they had been left with the stores near them or within a 25 mile radius of them, their numbers would have been high enough to remain open.
(we received the official word from an exec at that store who had been given the numbers)
FHR-
The 8 store I mentioned was in the Snellville city limits– on the left side if you’re traveling from Decatur in a shopping center that kinda slopes down. Here’s a link that mentions it. As a bonus you get to see a picture of a Walmart Market concept:
http://mysnellvilleblog.blogspot.com/2011/08/why-snellville-needs-walmart-market.html
(I can’t stop clicking through the Sky City site… imagine my delight to find a certain blogger’s comment on there– and he ended it by dreaming of a Trader Joe’s! :0)
78 (Target took my 7).
Deanne – I know the target you are referring to. On the corner of Ronald Reagan pkwy and 124 (Scenic Hwy) I shopped at it a good 4 maybe 5 years before the 78 Target was closed. Would actually alternate between the 2 stores if one was out of something I was looking for as it is about a 10 minute drive between the 2. It was not built as an alternative to the 78 store. both are different concepts (124 was refurb’d about 4 years ago to make it into a great land store – groceries but no deli/bakery, 78 was one of the 1st super target stores in Georgia).
Actually – now that I think of it, the target store that used to be on Covington hwy was closed in order to make way for the 78 store (this was back maybe 1999?)
FHR-
Oh dear! This isn’t going to turn out to be one of those “before you were born” things, is it?! Somebody please help me recall the details! This shopping center’s on 78 in Snellville a couple of miles (or so) before you get to the intersection to turn left onto Scenic Hwy. I’m thinking it sat empty for a long time, then was like a flea market or pawn shop before becoming a workout place. It’s easy to pass by it– don’t believe there’s any major signage on the road. Just an old shopping center down in a valley.
Darla Dixon, the My Snellville blogger, kindly replied with this:
” If I remember correctly, it was in the shopping center at 78 & McGee Rd. It relocated to Scenic Hwy after Eastside Hospital relocated near Scenic Hwy. A lot of businesses moved from 78 to be near the hospital.
The Walmart Neighborhood Market we will have here in Snellville may not have the awnings as shown in my blog post. The awnings were not part of the agreement. But I think it will still look nice.”
Your facts are a little shaky. This one has been abandoned since 1995 since they moved into their newer store in Fayetteville. It has really spruced up the neighborhood for the last 16 years.
From Wikipedia: “Today, most of the former Richway stores either sit abandoned or have been converted to other uses….Other Richways are sitting vacant where the surrounding area was in decline and no reinvestment was made in the former buildings…” The reason Target occupied former Richway stores was because Dayton-Hudson (Target) bought Richway.
http://en.wikipedia.org/wiki/File:Converted_richway.jpg
Target left a store in Duluth (Gwinnett place) to move 2 blocks away and create a super target. The 78 store was closed due to lower performance (the super t’s do better on the west side of the suburbs – Alpharetta, Roswell, etc), BUT the employees were treated pretty badly in that shutdown ( we have friends who worked there). Most were offered a 3 month transfer and then summarily laid off which was actually better than what happened with others at the store, but note that there was less than a 30 day notice to employees that the store would be closing and this was told AFTER they were worked hard for Christmas. Cost cutting measures in all stores have stretched staff thin, 1 person doing the job of what used to be 4 people. Christmas season means the “execs” (salary employees) work 6 days a week, no exception. A family member worked in one of the local stores for 10 years, had consistently exceptional reviews, but after restructuring, was the highest paid non- exec in the store (but did make more than a couple of the execs). Thus was laid off. Which was expected for a couple months. What was the fun surprise was the company target contracts with to fight any and all unemployment claims. They win more often than they lose. Even when unemployment claims are legitimate.
Each company has its evils. That’s why there’s the phrase – its not personal, it’s just business. And everything I’ve just listed are sound business decisions if a company is trying to stay afloat. Morally? Not so much. Shop where you want, but don’t pretend one is more morally just than the other.
(and yes, we all do actually still shop at target and prefer it over Walmart. We just boycott the “new” manager who ultimately made the decision to screw over many of the employees at the store and shop anywhere but where she goes to.)
Target is far from perfect, but I don’t know of Target ever closing a store and opening a new one literally right across the street. I have seen multiple examples of Wal Mart doing this, however. That is disgusting to me, and if I can help it I will never set foot in a Wal Mart for this reason.
Yup, back in the day, you could still use your department store cards at Target.
Nellie is probably inheriting Walmart stock and knows the name of each and every person who works at the Edgewood Target, where I think she may live in one of those the mini-tents in the camping aisle, so take what she says with a grain of salt.
Target doesn’t have a major, ongoing PR problem and what was the biggest class action lawsuit in the country taken out against them for a reason. I agree they’re all bad in many ways but Walmart is the worst (and Target is the baaaaadest).
The plan from Selig doesn’t show a 6-story building. The pretty drawing with the 6-story brick and glass building is something DM grabbed from another website, to illustrate that Walmart now builds in different architectural styles (not just the big brick box in blue/red/gray).
I don’t think distance is any justification one way or another. Think CVS pharmacies…
Depends on whether you have a short or long view. Right now, such an urban building, by itself, would be oddly out of context with its surroundings. But if the light rail mentioned earlier in this thread gets built, Suburban Plaza will almost certainly be designated a transit center and, presumably, rezoned for dense and walkable transit-oriented development.
Given a Walmart probably only has a 5 to 10 year lifespan anyways, they might as well build it as currently proposed. They’ll probably be abandoning it right about the time it makes sense to redevelop to meet new conditions.
I am very happy so far. I can only hope that this is not going to have the “big box” look we all detest. With the expense of underground parking, I am hopeful this wiil have the more upscale facade of some of the new urban Walmarts.
I will appreciate having competitive groceries at Suburban.
Can anyone tell me of a place where there is a nice, thriving downtown (like Decatur has) and a Walmart? I don’t see the empty buildings of the small businesses that will go out of business when this plan is implemented. And when this Walmart becomes too old or small will they just abandon it like they did in Woodstock, GA and other places. In Woodstock they REMOVED the green space to put up the new Walmart and left the old one as an empty hull and the small business around it to starve. They are really thoughtful of the community.
Rocket 88 closed. How dare they leave an empty space behind!
Good try.
Thank you.
The Avondale Walmart will certainly see a slump in sales when and if a Suburban Plaza store opens. Then they can begin to cut staff.
Yep. Once this one is profitable, Mem. store will close.
WALMART is evil.
Yes, I am one of “those” types…
Honestly, I wouldn’t mind if that store closed. It’s clearly haunted, either by the nearby graves or Sam Walton’s ghost.
Interesting info on the nearby graves: http://bit.ly/gdNuMT
Ancestor of mine is in there
I suspect it will look much like the WalMart in Chamblee with underground parking and supporting strip mall. Not an ugly huge building and nicer than what was there before.
Holy crap that’s a big store! Here the Street View for anyone who’s interested.
Well, there you go: “Walkable,” as defined by Walmart.
It’s really almost more unappealing up against the street like that. Ugh.
I think that the current conditions require a more open mind. This site will always be a big-box location, anyone who thinks differently needs to understand the development world a bit better. This site is one of the gateway’s to Decatur and its current conditions are a major detraction not attraction to our community. I support local business as well as smart growth but a major anchor like this will provide strong interest in leasing up the available vacant retail. It will bring in cars yes but that will also help to re-activate the empty car dealers. A project like this will revitalize this entire area and will bring business back to a zone that we all just drive through. Regarding the impact on local businesses, look around does one of the shops on the square sell tooth brushes, chips, shampoo, and plastic tubs. They are all unique shops, selling items that will not be in direct competition. I think that information is good but everyone should take two steps back and understand what they want to build before we get 100 crazy “Bash Walmart” comments. Decatur has made development in its boundaries very challenging because of residents drumming up mob mentality. Development is what has provided the city with people, shops, and interest. We all need to keep an open mind.
All very good points.
However, this company has a history of double-dealing and self-serving actions that do not work in a communities best interest.
My distaste for this is not directed towards the Big Box Stores in general but WalMart specifically. Their past actions are a better indicator or what to expect rather than whatever they are currently saying.
This will end badly, eventually.
Have you seen that on Memorial Drive? Aside from the Aldi, what’s there?
BTW, my German and Swiss friends buy their chocolate at Aldi. It’s pretty good, even for choco snobs.
I have heard before that when Walmart moved into Tucker, what they wound up building was not anything like the design they had shown to the community. They pulled a bait and switch. Does anyone know anything about this? If this is true, I would be wary that they may do the same thing in Decatur.
They also cut down a historic tree on that property that they promised not to cut down.
I was against the Walmart on Memorial but now am a big fan. The horror stories just never materialized. They are now in the process of building a Sun Trust bank on the lot in front of the store. Yesterday I decided to try the Citi Kroger, had 5 items in my cart and decided to put every thing back and leave, the prices were a lot more than Walmart and the atmosphere was depressing. I can find most all of the name brands I need at Walmart, but still go to the Emory Publix for certain specialty items.
Anyone know how long Kroger has remaining on the lease intown? I presume it’s likely that the intown Kroger will suffer/close. What should we do with that space?
bowling,
roller skating,
Monkey Jump Thing,
Indoor water park,
Shooting range?
Good one. My usual vote is for children’s shoe store and bagel place but since this location is a little big for either, I vote for both.
Children’s shoe store + Shooting range = the elimination of the kids in restaurant woes of the willfully spawnless
Keep the bagels–they’d make good targets, no?
Only if served with delicious lox, cream cheese, purple onions and capers. And a mimosa.
The Baby (aka Intown) Kroger is about equidistant from Emory Commons Publix, the Big Kroger, and this future WalMart. If it has survived competition from the bigger, better, and cheaper Publix and Big Kroger, I think it will survive WalMart. Baby Kroger’s competitive advantage is that it’s right in town and walkable for some residents. It’s never competed well on selection or price.
While it’s true that Baby Kroger is somewhat limited on selection due to the limited space, their prices are the same as any other Kroger, whether or not you consider that competitive.
Hmmm. I’ll have to check that out because I thought I knew that the Big Kroger was cheaper, plus it prints out coupons at the register. Equal pricing might change my shopping preferences because I don’t love the atmosphere at Big Kroger, especially late at night when the parking lot seems dimly lit. But I’d still have to go to Big Kroger occasionally for its international section. Not even YDFM has some items that Big Kroger has, e.g. spaetzle.
It’s true, the prices are the same. The only difference is the size and selection. And yes, I’m one of those freaks who knows the price of everything, reviews both the Kroger and Publix circulars each week and splits up the grocery shopping between those two places, the farmer’s market and sometimes even *gasp* Walmart, though Kroger is actually cheaper almost across the board if you stick to weekly specials and store brands like my cheap ass does (Walmart does have the big bag of rawhide chips that the pups love so I end up there and, yes, I will be glad to have one at Suburban Plaza and further reduce my need to venture further south of the tracks than my favorite bar).
Always learning here at DM! I’ll still need the selection of Big Kroger for my complete food shopping but for short forays for common items like milk, good to know that a sprint to Baby Kroger is just as cheap and more convenient.
Ok, since we are on the topic of comparison shopping, plus this vaguely relates to the thread since WalMart must sell milk: What is the tastiest brand of milk? We have big disagreements about this at home. We are currently a no fat/skim milk family. Since I have to buy 3 gallons at a time given our milk consumption, I tend to buy whatever is the cheapest brand out there OR whatever is close by when we run out and get desperate. But my family claims that Kroger, Sam’s Club, Trader Joe’s, and Target milks are not as good and they don’t want me to buy it (but they drink it). Publix milk is ok but they vastly prefer high-priced Mathis Dairy. I think they are just fooled by the high price, yellow jug, and cachet of Mathis. What do DM readers prefer for brand of milk?
You mean Mayfield, not Mathis. Unfortunately, Mathis closed many years ago. If you buy that much milk you should have your milk delivered. It is more expensive but you never run out and save the cost of the panic trip to the baby Kroger. I find that it is fresher, meaning that it lasts longer, but in your household that may not be an issue. Call Preston Born (404) 243-0565.
I agree that the Target milk isn’t very tasty.
They do not compete on price, but the selection has improved substantially in the past few years. I think that trend will continue..
It is nice Wal-Mart made a concession to protect the Scott Blvd Ace Hardware Garden Center. I hope the MANA group got that in writing. I do wonder why MANA did not try to get a concession to protect the Ace Hardware operation as well.
Oh no! Not the Last Chance Thrift Store!! I always find the best stuff there. That’s where we got the scarecrow heads featured in the Eye on the Street photo the other day.
You always have the other Last Chance Thrift Store on Peachtree Industrial.
ugh! another big box store that will be empty in 15 years.
I’m against Wal-Mart but mostly because I worked for Wal-Mart in my 20’s as did my brother and the way they treated their employees back then was horrendous. I choose not to spend my money in a Wal-Mart if I can help it.
in the other news, why, why, WHY can no one at Trader Joe’s see that they could make a fortune if they took over the old grocery store in Suburban Plaza?????
Maybe, Kat, you should send the decision makers at Trader Joe’s the detailed market analysis that you’ve done, along with your profit/loss analysis, business plan, supply chain analysis and all the other numbers that you’ve crunched to prove to them that this location will meet their required ROI – I’m assuming that you know it. Just a thought. I’m sure that they haven’t done all of that themselves.
pretentious much Mr Buffett?
I love it when someone says the “required ROI”
Kat, as you clearly read this blog and the comments, how is that you (and everyone else who keeps crying about Trader Joe’s) not read the prior 9,347 stories posted here and other neighborhood blogs in which Trader Joe’s itself has said repeatedly that they are not coming to Decatur because the numbers simply do not work? Please stop crying about Trader Joe’s. It ain’t happening so get over it.
I have an opinion about whether or not TJ’s could succeed in Decatur. welcome to America! whether you agree or not, get over it.
I didn’t appreciate Mr. Buffett’s insinuation that because I haven’t spent 3 months studying every piece of demographic data about the city that I was born and raised in that my opinion has no value.
You are failing to realize that his insinuation is correct. Your opinion will have no bearing on TJs opening a store in Decatur as their research has produced facts that are contrary to your opinion.
I did not mean to single you out, and I apologize for that. Just tired of seeing the same tired (and irrelevant) response. This idealistic prefernce for TJs has no bearing on whether Walmart is opening a store at Suburban Plaza and adds nothing constructive to the conversation.
BTW, what makes you think TJs wouldn’t close down in 15 years (or sooner) and leave the space empty if it wasn’t in their financial interest to do so? All retailers close unprofitable stores, not just the ones you hate.
How is that pretentious? Perhaps he’s trying to point out that TJ’s probably has its own fleet of business analysts who have looked at the situation thoroughly. Sometimes conventional wisdom does not turn out to be true.
I agree it was very pretentious and condescending and bordered on insulting. If he wrote what you wrote, as you wrote it, it would just be an astute observation or comment!
With all of our running and all of our cunning;
If we couldn’t laugh we would all go insane!
Don’t mess with my cousin
I just wish Warren would stop wasting his time posting here and get around to paying a dividend to his (temporarily) suffering Berkshire shareholders! Oh, and kock off the “tax me, I’m rich” crap, too. That is all.
Yeah, that bugs me too. But when I tell him that, he’s all like, dude, you made enough money to buy Miami but you pissed it away so fast, so what do you care? And I have no witty retort to that…
My understanding is the garden center was left out because they could only build out so large – due to parking underground costs, etc. The garden center would have taken up too much site space. Some folks have also said Wal-Mart has indicated they will not sell guns, ammo or cigarettes at this location, but I think that is what some neighborhood folks have asked the property owner to ask Wal-Mart not to do.
Lots and lots of details in this proposed redevelopment.
Thanks for clearing that up Fred! I was starting to like Wal-Mart!
Lots and lots? What else ya got?
People have asked them not sell cigarettes? The things one can buy at any convenience store? Unreal. Well I don’t want to be left out. Wal-Mart, don’t even think of selling fabric softener in Decatur. I’m taking a stand, dammit!
Give ‘em an inch and they’ll take a mile…or at least your four inch cancer stick!
Walmart sells cigarettes and wine? How cheap? I may be wavering.
I guess those of us who would prefer they sell guns and ammo need to start our own coalition to get this specific walmart to stock them.
I really hope this Walmart has a McDonald’s in it and that they sell McRibs all the time. I really wouldn’t shop or eat there all that often but just the thought of that would keep this site hopping mad for weeks…
Perhaps Cozy Burger Town can come up with a suitable McRib alternative.
LOL! But serious question: Since I have a pretty rigid policy of not eating at former Pizza Huts (I’m from New Jersey, that is NOT pizza and I figure that the karma from the original occupant will forever haunt a place, but in this case the intervening “One Love” may possibly have cleansed the aura) I have not ventured into Cozy Burger Town. But I do love me a good burger shack, appearances be damned, so has anyone actually eaten here and should I be giving it a try?
I’ve went to Cozy Burger Town about half a dozen times now and no complaints!
So I guess this means that this parcel will not be annexed.
I know the location in Avondale is/was prohibited from selling alcohol because of its proximity to the high school. (Although hasn’t Avondale High closed? Maybe they sell beer and wine now) With the Medlock School (recently taken over) so close…maybe this store have to follow those restrictions. And surely if you can’t sell beer and wine, you shouldn’t be able to sell guns, ammo and cigarettes…right?
I think the Avondale High School building is being used for something else now. Strangely enough, I think it may be for students transferred to Druid Hills High School because their school does not meet AYP. (An interesting way to implement NCLB–because your school is not meeting AYP, you can transfer to the high school of your choice, Druid Hills, but your seat just happens to be four miles away….)
Avondale High School is the current home of DeKalb School of the Arts (as well as the new Druid Hills annex).
Let me put on my traffic engineer hat. As Mises alluded to, Medlock is not made for that amount of traffic either at that intersection, or at the other end where it typically turns into a one lane road due to the parked cars. Also, the bus stop is shown too far away from Walmart. Typically there are a significant number of people who use mass transit to get to Walmart, and the shopping carts are taken and left at the bus stop. Be kind to the employees that will need to truck them back to the store, otherwise they may become a permanent fixture.
Maybe they will sell Growlers at below cost… The Decatur equivalent of the Saturday Night Special.
I wish DTR were around to point out that we aren’t even a 1/5 of the way to 500 comments and that people need to step it up.
The McRib thread is dividing attention. It activates the same reflexes.
this plan sounds like a trojan horse. be afraid and don’t let them push us around. they have extremely deep pockets. i wonder why walmart wants to go at such a difficult intersection when half of the mall down the street is empty. along with thousands of unused parking spots.
Selig Enterprises is probably assuming that those thousands of empty spots will become a MARTA station one day.
The they should buy it, sit on it and sell it at a huge markup to MARTA when the time comes.
What huge markup? They will only get fair market value of the property if and when MARTA puts a station there, and obviously it is much more valuable with a new WalMart then in its current condition. Plus, the carrying costs on that property have to be substantial.
But, if you want to see it stay in its current condition, I am sure Selig will review your offer to buy the property. Then you can do as you please.
In case you haven’t noticed, real estate is cheap right now.
You are assuming there will be some meaningful increase in prices over the next few years. I hope you are right.
What plans does MARTA have for that property in “the next few years”?
I’m thinking longer term.
You are proposing holding the property for an indefinite amount of time in hopes that MARTA will in fact build a station there a long, long time from now and in hopes that the property will actually appreciate in value if the owner does nothing to improve the property and lets it deteriorate further. Great plan!!! If the owner does nothing, the property will lose value. Your idea does not serve the interest of the community or Selig. They want to make money and we want something to be done to improve that eyesore. WM may not be the ideal solution, but it might be the best available one.
That’s a lot of words you managed to cram into my mouth. Nice work!
Now, do you care to answer the question you were responding to?
You would have to ask MARTA about their future plans (although the Clifiton Corridor project contemplates a station there). I was simply referring to your original post about selling to “MARTA when the time comes”.
It may be a lot of words, but it is exactly what you said. “Buy it, sit on it”. I just thought your idea all the way through.
By “sit on it” I meant they should do whatrever they want with it until MARTA comes knocking.
The real point is, if you know the piece of land will be a crucial and valuable piece of land in the future, not buying it as an investment would be foolish.
A Trader Joe’s at Suburban would be nice, but realistically, can you feed your family on a budget with items from TJ? Another thing to consider – think of the jobs a new Wal Mart would bring, even if it is for minimum wage?
Does it have to be either/or WalMart/Trader Joe’s? How about both? They don’t overlap much in merchandise so they shouldn’t hurt each other’s sales. And maybe one would bring in a new clientele for the other? Perhaps Trader Joe’s customers would realize that they were low on bullets and cigarettes and would make an unplanned stop in Wal Mart. Similarly, a Wal Mart customer might run over to Trader Joe’s for some organic chocolate and frozen gyozas!
Forget Trader Joe’s. What about Whole Foods?! I heard a rumor that they were interested in a Decatur location….just a rumor.
For real? I once lived just down the street from a “baby” whole Foods in another city. I think it was comparable in size to the CVS on Ponce. Maybe smaller, actually. I could see something like that doing well in Decatur. I enjoyed shopping there more than in the giant stores. Didn’t really seem like there was less selection, either, although I guess there must have been. Lots less inventory though, obviously.
What about the godawful traffic impact it’ll have on Church St.?!? It’s already a big mess to turn left onto Sycamore Dr. with the short turn lanes and drivers on Church St. jockeying to get over to the left turn lane or to pull into the Moe’s entrance. Not only will egress for neighbors in the several neighborhoods be sorely affected, but this is the primary entrance folks use to go to Dekalb Medical and the medical buildings. MARTA also travels Church to Sycamore to Dekalb Medical to Winn Way. Pedestrians attempting to cross at the signalized crosswalks at Church St./N. Decatur intersection already have to dodge turning cars. We’re thinking of adding more without improving safety? Pulling out of Suburban Plaza on the Church St. side is dang risky due to the zooming traffic. (You couldn’t pay me to make a left out of there!) Factor in drivers on Church St. trying to turn left into Captain Dee’s, Firestone, and the Montessori School with additional traffic flying up on their back ends? Disaster in the making! What are Selig and the County Folks planning to do to address the negative traffic impact on the other side of Suburban Plaza?!?
The plan is essentially in compliance with the zoning. It’s the county’s responsibility, not the property owner or occupant’s, to ensure that the property is not overzoned in relation to its surrounding infrastructure.
I’m sure there’ll be a little give and take with the surrounding neighborhoods as it relates to entry and exit locations/patterns but don’t expect anything meaningful in terms of traffic mitigation. Not that I’m trying to bum everyone out. Just trying to set expectations so people don’t set themselves up for huge disappointment.
So… set low expectations for the County Folks?!? Somebody peel me off the ceiling!!!
[Ack! on the business name errors. A toss 'n turn night of dreaming about egress rattled my thinking! Kauffman Tire. And Captain D's-- not like Auntie Dee's, although my nieces like to say it's mine!]
Maybe Sycamorians could figure out some sort of a way to make their street a less desirable cut-through, but Church will also have a huge problem. They obviously didn’t anticipate something like this, when they narrowed/removed the lanes.
That other side is a major mess in its present state. That’s like a 6 way intersection. I watched a woman going going across the street just yesterday there on a motorized wheelchair, and it made me pretty nervous. Not only could people not see her, but the speed of everyone trying to catch their various turn signals because it was all backed up, was pretty dangerous for her.
I don’t look at this project as a bad thing, but something has got to be done with those intersections, and while it may not be entirely Walmart/Selig’s responsibility technically, it would be nice to see them get involved. At this moment, I’ll give them/Selig the benefit of the doubt since they ordered a traffic study, but obviously the real test will be what actually materializes. I’m leery of anything that involves the county, and this will more than likely be one of those situations where vocal neighbors are going to have to prove they are watching and involved, to make sure it works out favorable for them.
I’m not even spending my energy worrying about the added cut through traffic– it’s a no win argument. Not to say Decatur Heights won’t stay vocal about the speed limit and the high number of folks rolling through stop signs. I’ m ticked about the increased risk just to try to turn onto my street, and about the traffic impact it’s likely to have on Forkner Dr. residents with folks rerouting over.
The Scott/N. Decatur/Medlock interesction’s a nightmare! Thank goodness folks actually stopped for the lady in the wheelchair! It’s always zippity zoom past the yellow lights with folks set on making the turn! I’m dreading trying to cross Scott to get to the meeting!
I’m fine with a big box retailer coming to Suburban Plaza. I will NOT be fine if Selig manages to finagle development incentives for a property they’ve deliberately let deteriorate while on their quest for the BIG SCORE. I’ll never be convinced that Suburban Plaza with its high traffic exposure and surrounding neighborhoods couldn’t have attracted tenants had Selig put more effort and definitely more upkeep into this property. They’ve not even kept up basics- cleanliness, parking lot repair, painted pedestrian crossings. Their lack of regard for the existing tenants and customers is actually kinda appalling.
Thank you Deanne. That is an important point. We may need to tax the rich more – yes we do. But we do not need to provide tax incentives for rich moguls to fix up the real estate that they ruined in the first place. Mr. Selig, I’m pretty sure you’re reading this – don’t bring that junk over here. You ran this place into the ground and made it the eyesore that it is. Now you must be looking for help from some government entity, because Wal-Mart doesn’t usually like to build $10 million parking lots (that’s 500 spaces x $20k/space). Is it MARTA that you expect to help you? Is it the citizens of DeKalb? Given your track record with this site, why should these hard working citizens help you?
I think Selig would say: because they’re dumb enough to give me the money. If the government’s throwing money around why wouldn’t Selig take it? The fault is not with Selig, it’s with governments that are operating so far beyond their essential functions that this sort of crony capitalism has become distressingly commonplace. We have a welfare-for-all society, from the truly poor to the elderly to General Motors to Citibank to Selig to Wal-Mart.
It’s past the deciding point of what’s going to go there. It’s going to be a Walmart and that’s that. It’s been sitting there in it’s current state for ages with no interest/action from any other big grocer or retailer, that pretty much sums it up.
I have been in the Tucker Walmart a few times when I have gone over to the dead zone that is Northlake. 9 thousand people in line, 5 registers open, no self-service kiosks open, just a total fuster cluck every time I have gone there. If it’s anything like that here, I won’t step foot in there.
I do care about the way companies treat their employees. But really, If you’re wearing clothes that came from Macys you have no guarantee they weren’t made in a sweatshop. Do you know your engagement ring isn’t a blood diamond? In some way or another, we’re all using products, or wearing something, that was produced in unfavorable work conditions, if not outright brutality. In the big scheme, the things Walmart has done in the past, while wrong and certainly not excusable, are about the least worst of problematic working conditions. Just a little perspective is all I’m sayin…
Note to self: Add “fuster cluck” to working vocabulary!
No!No!No!No!NOOOOOOOOO!!!!!!!
I agree. The correct term is Usterclay Uckfay…
Don’t be nuckin’ futs!
Fuster cluck is the appropriate term! You’re creating a real mell of a hess if I may say so myself.
But that’s what I do best! Orrysay anyway…
Agree with Rebecca.
Just want to add that I shop at the Avondale WalMart from time to time and it seems to be well run — when the lines get long, they open additional registers without delay; pretty easy to find an employee out on the floor if I can’t find something or have a question. Store is clean and orderly.
The last time I was in the Tucker Walmart it had recently completed a remodel, and I have to admit it was a much better experience than it was before. However, (and I know this is going to sound politically incorrect), part of why it was a better experience is that it seems a portion of its customer base has left the area and so the store was less crowded, especially with unsupervised children.
“Wal-Mart and its charitable foundation plan to give $250-million in cash and $1.75-billion worth of food over the next five years to fight hunger in the United States, the company announced today.”
http://philanthropy.com/article/Wal-Mart-Announces-Plan-to/65487/
Gave more than 288,000,000 to charity in 2009.
http://www.usatoday.com/money/companies/2010-08-08-corporate-philanthropy-interactive-graphic_N.htm
Those bastards!!!
WOW!! Over ten years!
That works out to .00047% of Revenues and .0126% of Net Income.
They are GREAT!!
/snark off/
As if the prove that in some people’s eyes, Wal-Mart can do nothing right . . .
Plus, the first article says 5 years, not 10.
Way to change the numbers!! It clearly states five years. Also, this in on top of the roughly 300 million they give EVERY year. Sorry they didn’t get your memo as to how much they should give every year.
My bad.
I read 10.
So the recalc is 2.53% of Net 0.0009% of Rev. but hey I may still be off by some…
And yes, WalMart is evil. Nothing they do is right. I wouldn’t shed a tear if they went out of business today.
Would you shed a tear for the 1.8 million employees that would lose their jobs?
Walrus, you beat me to it… Millions would be effected if WM closed its doors.
Wal Mart’s competitors would have no choice but to expand and hire the bulk of those put out of work if WM were to cease to exist.
Yeah, that might take a while…
It’d be worth the wait.
Probably not for the people out of work for that period of time.
What period of time? WM’s competitors would have to fill the vacuum immediately.
Nope, not one bit.
Oh, you’re just being silly.
Nope, just callous and hateful.
Eh, can’t hate you for that.
I’d much rather have this big box in or around North DeKalb Mall.
Costco thought about that and then backed off, if you recall.
Yes, I recall, and I did not relish a conversion that was tardy to the outdoor mall fad.
My intended meaning was a site in or around the mall property, including Shamrock and the opposite corner. I would be happy for changes that help to address the commuter backup on North Druid Hills Rd or truck access to Home Depot.
Within the mall property, it might be nice to have Emory’s shuttle travel a few hundred feet to Walmart’s front door right after its parking lot stop.
Wal-Mart may no longer be a fantastic place to work. NPR reported this morning the Wally is ending health insurance coverage for part-time employees and greatly increasing the cost and lowering coverage for full time employees.
Most employers are raising health care costs and lowering coverage. Obama care has ruined the healthcare system as we know it. I have a choice of over $500 a month for my family PPO plan or a little less $200 for a high deductible plan. It’s not just Walmart, but most businesses have to do this if they are going to offer health care.
Or perhaps it is possible that people who ‘need’ things like this have something to do with the skyrocketing costs of health care in the U.S: http://www.zillow.com/blog/2011-10-24/home-of-the-week-guitar-shaped-grounds-at-alabama-mansion/
Now that got a grin out of me! Evidently money can’t buy you taste!
What does that have to do with healthcare costs?
Since the information on the property identifies the owner as “former CEO of MedPartners, a physician management company” the thought occurred that perhaps the money for this modest abode came from the health care industry. But I could be wrong.
Please explain your statement that “Obama care” ruined our health care as we know. Maybe you can link to something you read or heard on TV about that. Just curious.
I’m just curious: how many WalMart haters shop at Sam’s Club?
I think most of them are idealistic enough to boycott Sam’s as well. They just stick their heads in the sand and hope that Costco doesn’t hate gay people and sell the products of slave labor like their favorite store Target does
Costco’s actually supposedly pretty good to their employees, no?
Ah, I don’t know anything about Costco. Just amused by the vehement Walmart bashers who happily shop at Target
Hate the idealists?
Not at all. Just amused by the inconsistent and/or hypocritical ones!
Wal Mart lovers always have to dig for a nugget of hypocrisy in the haters’ rants. I avoid Wal Mart because of its record of treating employees like crap, the aggressive destruction of small businesses, and–worst of all–the large sums of cash it donates to right wing causes.
I don’t make a lot of money, but it’s worth it to me to shop according to my conscience. I may occasionally compromise, but never by shopping at WM; even it’s charity work doesn’t make up for all the harm it does.
(for the record, I also don’t get why do many people are in love with Trader Joe’s. I mostly go to the Kroger on Dekalb industrial; it’s got the best hippie food section around).
++++++++++++++++++++++++++++++++++++++++++++++++++++++++++++++++++++++++
Hippie food section? Ok, I was just there tonight and shop there often. I know the international section, bulk food section, faux Le Creuset cookware section, and organic food section. Do you mean the organic foods? That section is indeed pretty big for a Kroger store that otherwise has a strip mall feel to it. It has great Wallaby yogurts or whatever those Australian yogurts are called.
Haven’t heard the term “hippie” in a long, long, long time. The hippies became yuppies/buppies became retirees and you don’t hear that term much anymore!
I’m pretty sure that the only real “hippie food” are grilled cheese sandwiches…
What about that Cheeseburger in Paradise you sing of, Jimmy? I like mine with lettuce and tomato, ….
“and–worst of all–the large sums of cash it donates to right wing causes.”
Al, for the record and a nugget of hypocrisy (too easy), Kroger gave $42,000 to federal candidates in the 2006 election through its political action committee – 5% to Democrats and 95% to Republicans. In 2012, it was 28% Democrats and 72% Republican. Better start looking for a new hippie food store.
http://www.opensecrets.org/pacs/lookup2.php?strID=C00059238
Shocking. I even heard — are you sitting down? — that Kroger gave money to politicians because it wanted to influence the political process as part of its effort to make money. I think that Wal-Mart does the same, and maybe the unions and trial lawyers too! It seems that most of these companies give money to incumbents of both parties so they can have friends in power and don’t give a rat’s arse about party affiliation. A scandal if there ever was one.
I think she was just pointing out to Al, that his biggest problem with Walmart, is something that Kroger (which he loves) does as well.
Yes I know. I was making a broader point, that complaining about corporate political contributions on ideological grounds is silly. The companies aren’t taking sides with the right or the left, they’re just buying influence. Wal-Mart, for example, publicly supported Obamacare at the same time they donated money to pols of both parties. There’s no message there, it’s just currying favor and influence.
Yikes on that. All big companies are just hedging their bets to ensure they have access to politicians. Target has repeatedly given to candidates that don’t support gay marriage, they swore they changed their tune and wanted to make things right with the gay community, then did it again. But I would be willing to bet if we went looking at other stores and their executive’s private contributions, we would see much of the same thing. Singling one out as the problem child while exalting the others, just doesn’t take into consideration that they ALL have their issues.
I’m not a regular Target or Walmart shopper, but I LOVE Amazon, and was disappointed to read a long piece about problems with their company. Apparently the paramedics regularly make trips to their warehouses for overworked and exhausted employees, and they frequently fire the temp folks, so they don’t have to pick up full time employees. Did a fair amount of my Xmas shopping with them last year, but I don’t know if I can do that again in good conscience this year. What to do…
Committing to always shopping with your values, seems an impossible task.
It really is. I was surprised at that Amazon article too, but then was disappointed in myself for being so. Aside from technological innovation (which puts folks out of work, BTW) the only way to cut prices further is to cut corners. Suppliers, employees, etc. No judgment. That’s just the only way.
I guess a community could cut out the middle man, start it’s own cooperative and offer cheaper products that way, but that takes a real effort.
“Aside from technological innovation (which puts folks out of work, BTW) the only way to cut prices further is to cut corners”
Would you put computers, communication satellites, automobiles in the category of technological innovation? Do you think those innovations resulted in a net job loss? The jobs lost are low paying and obsolete. That’s just the reality of civilization.
Good point. Tis more of a double-edged sword than that rushed statement suggested.
Your comment is not green. It’s causing cognitive dissonance.
So long as rock-bottom prices remain the gold standard by which we gauge value, businesses will do whatever they can to answer that demand. No use hatin’ on those who most successfully deliver what we’ve collectively asked for. We have met the enemy and he is us.
We can either reconcile ourselves with that or pay more for domestically-produced, independently sold goods. Both are reasonable choices, depending on one’s individual circumstances. Just own it.
“We have met the enemy and he is us.”
Amen to that.
The amusing part in all of this if there is any, is that I would HIGHLY doubt any of us engaging in this debate here, are doing on so on any computer or phone made in the USA, much less under what would be considered favorable working conditions, by American standards.
I really do not understand — why bother introducing values and politics into the simple act of shopping? I need some new drinking glasses, Target has them at a reasonable price, so I buy them. I really need to introduce gay marriage, the debt ceiling, abortion, etc., into that simple equation? Not to mention that we all spend money at places where we have no idea what the owners believe, what causes they support, etc. It would never occur to me to sit down at Cakes & Ale, look over the menu, and then ask the waitress, “before I order, what is the owner’s position on gay marriage, and how does he treat his employees?”
By the way, Amazon is building new distribution centers and hiring new employees like crazy, and their profit margins are razor thin. They really have to be fairly thinly staffed to make money. It is not an easy business.
I agree with you to a point. The political contributions aspect of it, corporations give to who they believe is going to win, or want to win. That’s the way it.
About our local business folks, it’s not just a matter of a business owner having a position, it’s when they start picking sides with their money, that it could become a problem for them. No one knows your opinion, but contributions are public records. The people/places who were on record for their unfavorable stance on Prop. 8, faced financial repercussions, and I’m fine with that.
In the end what’s important to each customer is subjective, so alienate your customers at your on peril. Big corporations can afford to do this, but local places can’t.
As far as Amazon, they really have the same set of issues more or less as Walmart, and I still go to Walmart if I need to. So I wouldn’t describe myself as terribly hung up on it, but I’ll admit I was disappointed to read it.
Squabbling about which retailer is the most demonic is a waste of time. Walmart, Target, Macys, Kroger, Amazon, and the banks and the telecom companies and the insurance carriers and the utilities — they’re all just trying to survive and thrive in whatever retail niche they each inhabit, and they have responsibilities to their shareholders (unless they’re privately held–then hate ‘em all you want!). I used to cast asparagus at WalMart every chance I got, not least because my hometown is one of the many whose struggling mercantile community fell prey to their strategy. But I came to see that WM is not the disease, it’s a symptom. Strip your house (including your car and your garage and your tool shed) of everything that doesn’t conform to your ideals in terms of where/how it was manufactured, distributed and sold, and see what’s left.
Maybe it’s worth examining the financial, agricultural and environmental regulatory environments that incentivize the aspects of the retail landscape that we love to hate.
All I have left are my son’s wooden toys from his VT grandma. Now what?
Oh man, this is a great post in the making.
Vermont wood toys–a longstanding tradition of craftsmanship, home industry, and truly green (now that lead-based paint isn’t used anymore). Your child is lucky.
“I used to cast asparagus at….”: I love that. I’m going to start casting asparagus around too! How to be snarky, green, and farm-to-table all at the same tim!
Only in season. Otherwise it’s darn expensive.
Good point! And it takes a long time to steam too. But I’m pretty sure that casting around cooked asparagus is much more effective than casting around raw asparagus.
“Strip your house (including your car and your garage and your tool shed) of everything that doesn’t conform to your ideals in terms of where/how it was manufactured, distributed and sold, and see what’s left.”
But don’t donate or recycle the electronics…They may end up in a toxic waste dump where child laborers scavenge for raw materials that earn them a dollar or two a day, while exposing themselves to all sorts of nasty stuff that our gadgets are made of. Maybe we should just accept that the world is a pretty ugly place, and try to change the ugliest aspects if we can.